Superintendência da Casa Civil e Articulação Política

DECRETO Nº 2.785, DE 26 DE OUTUBRO DE 2016

Revogado, na íntegra, pelo art. 5º do Decreto nº 1.952, de 10 de novembro de 2020.


Cria o Arranjo Produtivo Local Moda Goiânia e dá outras providências.



✔ O Decreto Legislativo nº 015, de 10 de agosto de 2017, que susta os efeitos deste Decreto, teve a Ação Direta de Inconstitucionalidade nº 5288237.51.2019.8.09.0000 julgada improcedente pela Corte Especial do Tribunal de Justiça.


Nota: ver

1 - Lei nº 10.320, de 17 de janeiro de 2019 - institui o Arranjo Produtivo Local Moda Goiânia (APL Moda Goiânia);

2 - Decreto nº 3.095, de 12 de dezembro de 2016 - Comitê Gestor do Arranjo Produtivo Local Moda Goiânia.

O PREFEITO DE GOIÂNIA, no uso de suas atribuições que lhe são conferidas pelo art. 115, inciso IV, da Lei Orgânica do Município de Goiânia;

Considerando a o teor da norma constitucional insculpida no art. 182 da Constituição Federal a qual ao dispor sobre política urbana diz ser da responsabilidade do Poder Público Municipal ordenar o pleno desenvolvimento das funções sociais da cidade e garantir o bem estar de seus habitantes;

Considerando ainda que a Constituição Federal em seu art. 170 enumera como princípio norteador da ordem econômica a função social da propriedade, de modo a garantir a valorização do trabalho humano e a livre iniciativa;

Considerando as diretrizes gerais elencadas na Lei Federal nº 10.257, de 2001 para o ordenamento pleno das funções sociais da cidade, em especial, garantia do direito a cidade sustentável nela entendida o direito à terra urbana, à moradia, à infraestrutura, ao trabalho e ao lazer;

Considerando a relevante diretriz elencada no art. 2º, IV da Lei Federal nº 10.257, de 2001 (Estatuto da Cidade), de que no planejamento do desenvolvimento da cidade e da distribuição espacial da população e das atividades econômicas há de se evitar e corrigir distorções decorrentes do crescimento urbano e seus efeitos negativos, requalificando o espaço para adequá-lo aos usos e ocupações vocacionados e consolidados, observadas as condicionantes técnicas e jurídicas;

Considerando o disposto no art. 40 da Lei Complementar nº 171, de 29 de maio de 2007 (Plano Diretor de Goiânia), o qual estabelece que a implementação dos programas estratégicos de desenvolvimento econômico dar-se-á por meio das diretrizes gerais que consistirão, entre outras, especificamente, ao que ora se regulamenta:

“Art. 40. (...)

IV - desenvolver as potencialidades da produção local, a dinamização e valorização dos ramos de atividades já consolidadas e emergentes;

V - criar arranjos produtivos de atividades intensivas que combinem o emprego de mão-de-obra com conteúdo tecnológico e serviços especializados, conectados em redes de micro, pequenas, médias e grandes empresas, em cadeias produtivas locais e globais;

VI - viabilizar mecanismos institucionais que possibilitem o desenvolvimento da cidade, identificando as potencialidades de cada atividade geradora de emprego e renda e divulgá-las como forma de incentivo à população, visando diminuir a desigualdade, dando oportunidades a todos, qualificando e transformando a Capital;

VIII - consolidar e divulgar a identidade goiana, associando-a aos produtos e serviços da Região Metropolitana, oferecendo espaço privilegiado e qualificado de convivência propícia à comunidade local, baseada na oferta de serviços, produtos e atividades turística; “(..)

Considerando o previsto no art. 41, III, IV, VI, VII, da Lei Complementar nº 171, de 29 de maio de 2007, de que tratam dos programas que compõem a estratégia da promoção econômica, ipsi literis:

“Art. 41. (...)

III - Programa de Estímulo ao Turismo, com o objetivo de estabelecer uma política de desenvolvimento das atividades temáticas, com a participação da iniciativa privada e da comunidade, buscando a consolidação do Plano Municipal do Turismo Sustentável integrante do Plano Nacional de Municipalização do Turismo – PNMT;

IV - Programa de Integração dos Setores Formal e Informal da Economia, com o propósito de promover a legalização das atividades informais ligadas à micro e pequena empresa, a empresa familiar e a indústria de fundo de quintal por meio de programas de apoio ao setor;

VI - Programa de Estímulo à Geração de Emprego, Trabalho e Renda, com o propósito de garantir o acesso da população aos postos de trabalho, com a conseqüente geração de renda, contribuindo de maneira equivalente, para o desenvolvimento das atividades econômicas do Município;

VII - Programa de Apoio às Atividades Econômicas do Município, com vistas a estimular as atividades geradoras de renda de caráter plural, de maneira equilibrada e sustentável, através de ações diretas com a população e o setor produtivo, bem como a articulação com outras esferas de poder e em consonância com as diretrizes de desenvolvimento locais e metropolitanas. (...)

Considerando Considerando que tramita ação civil pública, protocolo nº 478519-56.2011.809.0051 (201104785190), perante a 2ª Vara da Fazenda Pública Municipal cuja causa de pedir e pedidos são consubstanciados em obrigações de fazer consistentes em determinar que o Município proceda a interdição de estabelecimentos comerciais sem licença e alvará de localização e funcionamento, situados no Setor Norte Ferroviário, Rua 44 e adjacências, e solucionar a questão dos transtornos decorrentes do excesso de ônibus que estacionam nos logradouros públicos, transportando comerciantes e mercadorias adquiridas, tumultuando o transito local, bem como verberando que configura pólo atrativo de comércio informal e lotam as Ruas 303 e 304 e arredores, num verdadeiro turismo comercial;

Considerando ainda, que na citada Ação Civil Pública há a argumentação de que houve uma transformação urbanística considerável no Setor Norte Ferroviário, não só pelo impacto de trânsito, mas, também, pela proliferação de galerias, hotéis e outros estabelecimentos desenvolvendo inúmeras atividades irregulares e inúmeros hotéis em funcionamento, sem o devido Alvará de Localização e Funcionamento, sob o argumento, em síntese, de que a Administração Pública Municipal não promoveu o adequado ordenamento territorial em parcela do Setor Norte Ferroviário;

Considerando que o Município de Goiânia, ao cumprir a Sentença proferida deverá estabelecer a regulamentação do setor produtivo local, observando-se o Decisum e as diretrizes contidas na legislação urbanística, com todas as suas interfaces de complementariedade dos usos e ocupações locais, valorizando e consolidando as atividades não residenciais do ramo do comércio do vestuário na Rua 44 e adjacências nos setores Norte Ferroviário e Central, redundando em importante instrumento ao estímulo do comércio e geração de emprego e renda na Capital;

Considerando que a região funciona como pólo de atração comercial de pessoas de outras cidades do Estado de Goiás e de outros Estados, constituindo como centro de turismo de negócio;

Considerando a necessidade de reorganização da área ocupada pelas Feiras Especiais, Feira Hippie e Feira da Madrugada, a fim de garantir um melhor aproveitamento do espaço público e mobilidade urbana do entorno;

Considerando que Arranjo Produtivo Local (APL) é uma aglomeração de empresas, localizadas em um mesmo território, que desenvolvem atividades econômicas correlatas e que apresentam vínculos de produção, interação e cooperação;

Considerando a Lei nº 9.548, de 22 de abril de 2015, que instituiu o Programa Municipal de Parcerias Público-Privadas (PPP) é destinada a promover, fomentar, coordenar, regular e fiscalizar a realização de parcerias público-privadas no âmbito da Administração Pública Municipal Direta e Indireta, visando implantar e desenvolver obra, serviço ou empreendimento público, bem como explorar a gestão das atividades deles decorrentes;



DECRETA:


Art. 1º REVOGADO. (Redação revogada pelo art. 5º do Decreto nº 1.952, de 10 de novembro de 2020.)

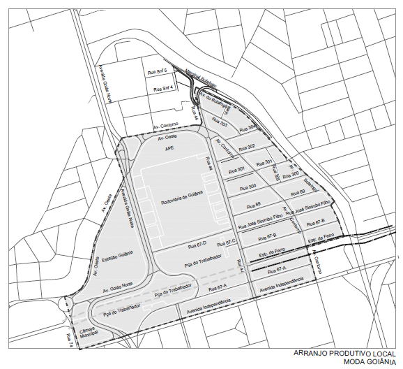
Art. 1º Fica instituído o Arranjo Produtivo Local Moda Goiânia (APL Moda Goiânia), com disciplinamento especial para as áreas e/ou lotes formadores do polígono do entorno da Praça do Trabalhador, delimitado conforme figura constante no Anexo Único deste Decreto e do qual fazem parte as seguintes vias: (Redação do Decreto nº 2.785, de 26 de outubro de 2016.)

I - REVOGADO. (Redação revogada pelo art. 5º do Decreto nº 1.952, de 10 de novembro de 2020.)

I - Avenida Independência; (Redação do Decreto nº 2.785, de 26 de outubro de 2016.)

II - REVOGADO. (Redação revogada pelo art. 5º do Decreto nº 1.952, de 10 de novembro de 2020.)

II - Rua 67-A; (Redação do Decreto nº 2.785, de 26 de outubro de 2016.)

III - REVOGADO. (Redação revogada pelo art. 5º do Decreto nº 1.952, de 10 de novembro de 2020.)

III - Estrada de ferro; (Redação do Decreto nº 2.785, de 26 de outubro de 2016.)

IV - REVOGADO. (Redação revogada pelo art. 5º do Decreto nº 1.952, de 10 de novembro de 2020.)

IV - Rua 67-B; (Redação do Decreto nº 2.785, de 26 de outubro de 2016.)

V - REVOGADO. (Redação revogada pelo art. 5º do Decreto nº 1.952, de 10 de novembro de 2020.)

V - Rua José Sinimbu filho; (Redação do Decreto nº 2.785, de 26 de outubro de 2016.)

VI - REVOGADO. (Redação revogada pelo art. 5º do Decreto nº 1.952, de 10 de novembro de 2020.)

VI - Rua 67-C; (Redação do Decreto nº 2.785, de 26 de outubro de 2016.)

VII - REVOGADO. (Redação revogada pelo art. 5º do Decreto nº 1.952, de 10 de novembro de 2020.)

VII - Rua 67-D; (Redação do Decreto nº 2.785, de 26 de outubro de 2016.)

VIII - REVOGADO. (Redação revogada pelo art. 5º do Decreto nº 1.952, de 10 de novembro de 2020.)

VIII - Rua 68 (trecho entre a Av. Independência e a Rua 67-A); (Redação do Decreto nº 2.785, de 26 de outubro de 2016.)

IX - REVOGADO. (Redação revogada pelo art. 5º do Decreto nº 1.952, de 10 de novembro de 2020.)

IX - Rua 69; (Redação do Decreto nº 2.785, de 26 de outubro de 2016.)

X - REVOGADO. (Redação revogada pelo art. 5º do Decreto nº 1.952, de 10 de novembro de 2020.)

X - Rua 300; (Redação do Decreto nº 2.785, de 26 de outubro de 2016.)

XI - REVOGADO. (Redação revogada pelo art. 5º do Decreto nº 1.952, de 10 de novembro de 2020.)

XI - Rua 301; (Redação do Decreto nº 2.785, de 26 de outubro de 2016.)

XII - REVOGADO. (Redação revogada pelo art. 5º do Decreto nº 1.952, de 10 de novembro de 2020.)

XII - Rua 302; (Redação do Decreto nº 2.785, de 26 de outubro de 2016.)

XIII - REVOGADO. (Redação revogada pelo art. 5º do Decreto nº 1.952, de 10 de novembro de 2020.)

XIII - Rua 303; (Redação do Decreto nº 2.785, de 26 de outubro de 2016.)

XIV - REVOGADO. (Redação revogada pelo art. 5º do Decreto nº 1.952, de 10 de novembro de 2020.)

XIV - Rua 304; (Redação do Decreto nº 2.785, de 26 de outubro de 2016.)

XV - REVOGADO. (Redação revogada pelo art. 5º do Decreto nº 1.952, de 10 de novembro de 2020.)

XV - Rua 305; (Redação do Decreto nº 2.785, de 26 de outubro de 2016.)

XVI - REVOGADO. (Redação revogada pelo art. 5º do Decreto nº 1.952, de 10 de novembro de 2020.)

XVI - Viela de Passagem; (Redação do Decreto nº 2.785, de 26 de outubro de 2016.)

XVII - REVOGADO. (Redação revogada pelo art. 5º do Decreto nº 1.952, de 10 de novembro de 2020.)

XVII - Avenida Contorno; (Redação do Decreto nº 2.785, de 26 de outubro de 2016.)

XVIII - REVOGADO. (Redação revogada pelo art. 5º do Decreto nº 1.952, de 10 de novembro de 2020.)

XVIII - Avenida Botafogo; (Redação do Decreto nº 2.785, de 26 de outubro de 2016.)

XIX - REVOGADO. (Redação revogada pelo art. 5º do Decreto nº 1.952, de 10 de novembro de 2020.)

XIX - Rua 44; (Redação do Decreto nº 2.785, de 26 de outubro de 2016.)

XX - REVOGADO. (Redação revogada pelo art. 5º do Decreto nº 1.952, de 10 de novembro de 2020.)

XX - Avenida Goiás Norte; (Redação do Decreto nº 2.785, de 26 de outubro de 2016.)

XXI - REVOGADO. (Redação revogada pelo art. 5º do Decreto nº 1.952, de 10 de novembro de 2020.)

XXI - Avenida Oeste; (Redação do Decreto nº 2.785, de 26 de outubro de 2016.)

XXII - REVOGADO. (Redação revogada pelo art. 5º do Decreto nº 1.952, de 10 de novembro de 2020.)

XXII - Rua 74 (trecho entre a Av. Independência e a Av. Contorno). (Redação do Decreto nº 2.785, de 26 de outubro de 2016.)

Art. 2º REVOGADO. (Redação revogada pelo art. 5º do Decreto nº 1.952, de 10 de novembro de 2020.)

Art. 2º Ficam permitidas a implantação e instalação de atividades não residenciais condizentes com o APL Moda Goiânia, com Grau de Incomodidade - GI-1, GI-2 e GI-3 para as vias classificadas como locais de 1 a 5 no perímetro ora delimitado, desde que atendidos os requisitos legais para o Licenciamento. (Redação do Decreto nº 2.785, de 26 de outubro de 2016.)

§ 1º REVOGADO. (Redação revogada pelo art. 5º do Decreto nº 1.952, de 10 de novembro de 2020.)

§ 1º As atividades não residenciais mencionadas no caput deste artigo serão disciplinadas em ato próprio do Órgão Municipal de Planejamento Urbano. (Redação do Decreto nº 2.785, de 26 de outubro de 2016.)

§ 2º REVOGADO. (Redação revogada pelo art. 5º do Decreto nº 1.952, de 10 de novembro de 2020.)

§ 2º Para as edificações não residenciais existentes, admite-se a locação de reserva técnica de estacionamento gratuito de veículos para clientes num raio de 300m (trezentos metros) e liberação da área de carga e descarga. (Redação do Decreto nº 2.785, de 26 de outubro de 2016.)

§ 3º REVOGADO. (Redação revogada pelo art. 5º do Decreto nº 1.952, de 10 de novembro de 2020.)

§ 3º Para as novas edificações não residenciais ou acréscimos de áreas em edificações existentes, a reserva técnica e a área de carga e descarga deverão atender a legislação vigente. (Redação do Decreto nº 2.785, de 26 de outubro de 2016.)

Art. 3º REVOGADO. (Redação revogada pelo art. 5º do Decreto nº 1.952, de 10 de novembro de 2020.)

Art. 3º Ficam permitidos os empreendimentos definidos como macroprojetos, identificados no art. 94, I e II, desde que, atendidas as exigências estabelecidas nos arts. 95 e 96, da Lei Complementar nº 171, de 29 de maio de 2007 e os dispositivos da Lei nº 8.646, de 23 de julho de 2008 ou sucedâneas, no perímetro ora delimitado. (Redação do Decreto nº 2.785, de 26 de outubro de 2016.)

Art. 4º REVOGADO. (Redação revogada pelo art. 5º do Decreto nº 1.952, de 10 de novembro de 2020.)

Art. 4º Visando garantir a mobilidade urbana, de modo a resguardar maior fluidez no trânsito de bens e pessoas, serão implantadas alterações no fluxo de veículos e criadas vagas de estacionamento ao longo das vias do perímetro ora delimitado, observando as normas e diretrizes da política de mobilidade urbana e os princípios da equidade no uso do espaço público. (Redação do Decreto nº 2.785, de 26 de outubro de 2016.)

§ 1º REVOGADO. (Redação revogada pelo art. 5º do Decreto nº 1.952, de 10 de novembro de 2020.)

§ 1º A mobilidade urbana sustentável será garantida com a implantação de sistema binário entre a Rua 44 e a Avenida Contorno e alterações nas áreas de estacionamento, conforme projeto coordenado pelo Órgão Municipal de Planejamento Urbano e executado pelos órgãos municipais competentes. (Redação do Decreto nº 2.785, de 26 de outubro de 2016.)

§ 2º REVOGADO. (Redação revogada pelo art. 5º do Decreto nº 1.952, de 10 de novembro de 2020.)

§ 2º Os estacionamentos das vias deverão ser implantados conforme projeto urbanístico elaborado pelo Órgão Municipal de Planejamento Urbano. (Redação do Decreto nº 2.785, de 26 de outubro de 2016.)

§ 3º REVOGADO. (Redação revogada pelo art. 5º do Decreto nº 1.952, de 10 de novembro de 2020.)

§ 3º Poderão ser designadas como áreas de estacionamento, além do descrito no § 2º deste artigo, as áreas públicas resultantes de desapropriação e áreas remanescentes do sistema viário, sendo permitida a realização de Parceria Público Privada (PPP) para a criação de edifícios garagem, observados os dispositivos da Lei nº 9.548, de 22 de abril de 2015. (Redação do Decreto nº 2.785, de 26 de outubro de 2016.)

Art. 5º REVOGADO. (Redação revogada pelo art. 5º do Decreto nº 1.952, de 10 de novembro de 2020.)

Art. 5º Quando se tratar de áreas tombadas, pertencentes ao perímetro ora delimitado, é necessário à anuência prévia do Instituto do Patrimônio Histórico e Artístico Nacional (IPHAN) ou órgão correspondente em âmbitos estadual e municipal. (Redação do Decreto nº 2.785, de 26 de outubro de 2016.)

Art. 6º REVOGADO. (Redação revogada pelo art. 5º do Decreto nº 1.952, de 10 de novembro de 2020.)

Art. 6º Para garantir a exequibilidade do APL Moda Goiânia, ficam estabelecidos os seguintes prazos, a contar da data de publicação deste Decreto: (Redação do Decreto nº 2.785, de 26 de outubro de 2016.)

I - REVOGADO. (Redação revogada pelo art. 5º do Decreto nº 1.952, de 10 de novembro de 2020.)

I - 6 (seis) meses para a implantação do sistema binário previsto no § 1º do art. 4º; (Redação do Decreto nº 2.785, de 26 de outubro de 2016.)

II - REVOGADO. (Redação revogada pelo art. 5º do Decreto nº 1.952, de 10 de novembro de 2020.)

II - 4 (quatro) meses para o Procedimento de Manifestação de Interesse (PMI) e Procedimento não Solicitado (PNS) visando a formalização da intenção de parceria público-privadas, nos termos do art. 4º da Lei nº 9.548/2015, para a construção de edifícios garagem nas áreas de que trata o § 3º, do art. 4º; (Redação do Decreto nº 2.785, de 26 de outubro de 2016.)

III - REVOGADO. (Redação revogada pelo art. 5º do Decreto nº 1.952, de 10 de novembro de 2020.)

III - 12 (doze) meses para a execução da PPP relativo à construção dos estacionamentos previstos no §3º do art. 4º; (Redação do Decreto nº 2.785, de 26 de outubro de 2016.)

IV - REVOGADO. (Redação revogada pelo art. 5º do Decreto nº 1.952, de 10 de novembro de 2020.)

IV - 24 (vinte e quatro) meses para implantação da reorganização da área pública ocupada pelas feiras especiais (Feira Hippie e Feira da Madrugada). (Redação do Decreto nº 2.785, de 26 de outubro de 2016.)

Art. 7º REVOGADO. (Redação revogada pelo art. 5º do Decreto nº 1.952, de 10 de novembro de 2020.)

Art. 7º Fica criado o Comitê Gestor do APL Moda Goiânia, composto por representantes legais das associações dos comerciantes e dos feirantes da região, bem como da Administração Municipal, por meio dos órgãos municipais de planejamento urbano, desenvolvimento econômico, trânsito, com representatividade da Procuradoria Geral do Município, garantindo sua paridade. (Redação do Decreto nº 2.785, de 26 de outubro de 2016.)

Parágrafo único. REVOGADO. (Redação revogada pelo art. 5º do Decreto nº 1.952, de 10 de novembro de 2020.)

Parágrafo único. O Comitê Gestor do APL Moda Goiânia será constituído por ato do Chefe do Poder Executivo e presidido pelo representante do Órgão Municipal de Planejamento Urbano. (Redação do Decreto nº 2.785, de 26 de outubro de 2016.)

Art. 8º o Este Decreto entrará em vigor na data de sua publicação. (Redação do Decreto nº 2.785, de 26 de outubro de 2016.)

Art. 8º REVOGADO. (Redação revogada pelo art. 5º do Decreto nº 1.952, de 10 de novembro de 2020.)

GABINETE DO PREFEITO DE GOIÂNIA, aos 26 dias do mês de outubro de 2016.

PAULO GARCIA

Prefeito de Goiânia

Este texto não substitui o publicado no DOM 6435 de 26/10/2016.

ANEXO ÚNICO – Decreto nº 2785/2016

(Redação revogada pelo art. 5º do Decreto nº 1.952, de 10 de novembro de 2020.)



(Redação do Decreto nº 2.785, de 26 de outubro de 2016.)